1/12
新一批宝山区区筹公租房项目来了!在线VR全景看房看这里
上海宝山2020-10-20 14:30:42

新一批宝山区区筹公租房项目雍和府正式推出!

小提示:底部附有后续房源推出预告,公共服务类行业企业可优先供应,可提取公积金支付房租。

项目介绍

雍和府公租房项目位于,宝山区罗泾镇潘泾路5777弄189号,共计房源60套,均为二居室,其中二居室A户型30套,二居室B户型15套,二居室C户型15套。

VR全景看房

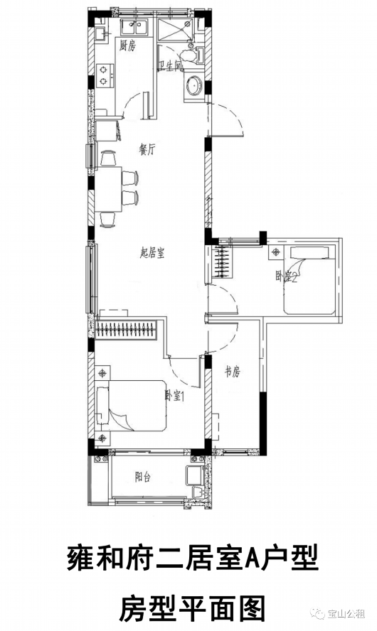
二居室A户型

扫描上方二维码看房

二居室B户型

扫描上方二维码看房

二居室C户型

扫描上方二维码看房

小区实景图

户型介绍

二居室A户型(87.33㎡/套)

具体配置:

客餐厅:餐桌、餐椅

主卧:衣柜、高箱床、床头柜、窗帘、窗帘杆、 空调

次卧:衣柜、高箱床、床头柜、窗帘、窗帘杆、 空调

厨房:油烟机、电磁炉、橱柜

卫生间:电热水器、浴霸、台盆、坐便器

(注:书房无家具配置)

二居室B户型(89.41㎡/套)

具体配置:

客餐厅:餐桌、餐椅

主卧:衣柜、高箱床、床头柜、窗帘、窗帘杆、空调

厨房:油烟机、电磁炉、橱柜

卫生间:电热水器、浴霸、台盆、坐便器

(注:次卧及书房无家具配置)

二居室C户型(93.99m2/套)

具体配置:

客餐厅:餐桌、餐椅

主卧:衣柜、高箱床、床头柜、窗帘、窗帘杆、空调

厨房:油烟机、电磁炉、橱柜

卫生间:电热水器、浴霸、台盆、坐便器

(注:次卧及书房无家具配置)

租金价格

二居室A户型(30套):

建筑面积:87.33㎡/套

租金区间:1863元~1981元/月

二居室B户型(15套):

建筑面积:89.41㎡/套

租金区间:1956元~2076元/月

二居室C户型(15套):

建筑面积:93.99㎡/套

租金区间:2056元~2183元/月

装配实景图

周边配套

公交线路

宝山6路、宝山31路、宝山81路、宝山86路

地铁

七号线美兰湖站

教育

罗泾镇第二幼儿园、罗泾镇中心幼儿园、罗泾中心小学、罗泾中学、罗泾中心校、民办肖泾小学、上海外国语大学附属宝山双语学校

医疗

罗泾社区卫生服务中心

商业

翼生活·睦邻小镇、华联超市、农工商超市等

哪些人群可以承租公共租赁住房?

1、以个人为主体:

(1)具有本市常住户口或持有《上海市居住证》达到2年以上并且在本市连续缴纳社会保险金1年以上(含1年);

(2)与本区单位签订1年以上(含1年)劳动合同。

2、以单位为主体:

(1)设立在本区范围内具有法人资格的机关、企事业单位或团体;

(2)申请职工应具有本市常住户口或持有《上海市居住证》;

(3)单位员工与该单位签订1年(含1年)以上劳动合同,并由单位承诺在本市缴纳社会保险金;

(4)租金由单位直接支付或单位提供担保后由员工直接支付。

3、个人和单位都应符合:

(1)在本市人均住房建筑面积低于15平方米,住房面积的计算标准按本市相关规定执行;

(2)未享受本市保障性住房政策(廉租住房和共有产权保障住房);

(3)本市、区政府相关部门规定的其它条件。

申请流程

申请时间:2020年11月1日起

1、网上申请:请登录公司官网(www.bsgzf.com.cn)首页进行网上申请,可在“上海一网通办”同步申请;
2、网上审核:公司工作人员网上审核,通过后短信通知申请人;
3、提交材料:申请人按要求至公司对外受理窗口提交申请材料(原件和复印件);
窗口地址:宝杨路1369号房地产交易中心1楼9#公租房窗口
联系人:吴老师、周老师、娄老师
联系电话:56671727、56753025
4、资格审核:申请材料上报区住房保障机构审核,审核通过出具《宝山区公共租赁住房准入资格确认书》;
5、网上排队:短信通知申请人获得宝山区公共租赁住房准入资格,申请人登录公司官网(www.bsgzf.com.cn)进行意向房屋排队;
6、网上选房:申请人登录公司官网(www.bsgzf.com.cn)进行网上选房并预约看房时间;
7、现场验房:短信通知申请人具体看房时间,前往现场进行验房;
8、签订合同:短信通知申请人带好身份证原件至公司签订租赁合同(二年)并支付首期租金(微信支付、付三押一);
公司地址:盘古路572号1号楼402室
联系人:鲍老师、杨老师、李老师
联系电话:18917772501
9、办理入住:现场办理入住手续,签订安全责任书、公共事业费充值、开通智能门锁、领取空调遥控器、门禁卡、信报箱钥匙等。

后续房源推出预告

选稿:潘子慧
知识产权、免责声明以及媒体合作联系
继续了解
知识产权声明

【知识产权声明】

除本司(指上海东方网股份有限公司)另行声明外,本司网页及客户端产品(以下简称“本网”),包括但不限于东方新闻、翱翔、东方头条等,所涉及的任何资料(包括但不限于文字、图标、图片、照片、音频、视频、图表、色彩组合、版面设计、商标、商号、域名等)的知识产权均属本司和资料提供者所有。未经本司书面许可,任何人不得复制、转载、摘编、修改、链接、镜像或以其他任何方式非法使用东方网的上述内容。对于有上述行为者,本司将保留追究其法律责任的权利。

东方网、东方新闻、翱翔,以上均为本司享有权利之合法商标,未经本司书面授权,任何单位或个人不得使用上述商标,或将上述商标用作网站、媒体名称等。

【免责声明】

1、凡本网注明来源“东方网”或“东方新闻”或带有东方网LOGO、水印的所有内容,包括但不限于文字、图片、音频视频,版权均属本司所有,任何媒体、网站或其他任何形式的法律实体和个人未经本司书面授权均不得转载、链接或以其他方式复制传播。与我司签订有关协议或已经获得本司书面授权许可的媒体、网站或其他任何形式的法律实体和个人,应在授权范围内使用,且必须注明来源“东方网”。其目的在于传递更多信息,并不意味着本司赞同其观点或认可其内容的真实性。如果其他媒体、网站或其他任何形式的法律实体和个人使用,必须保留本司注明的“稿件来源”,并自负全部法律责任。如擅自篡改为“稿件来源:东方网”,本司将依法追究责任。

2、擅自使用东方网名义转载不规范来源的信息、版权不明的资讯,或盗用东方网名义发布信息,设立媒体账号等,本司将依法追究其法律责任。

3、鉴于本网发布主体、发布稿件来源广泛,数量较多,如因作者联系方式不详或其他原因未能及时与著作权拥有者取得联系,或著作权人发现本网转载了其拥有著作权的作品时,请主动来函、来电与本司联系,或与本司授权的中国文字著作权协会联系,提供相关证明材料,我方将及时处理。
中国文字著作权协会联系方式:
联系人:赵洪波 唐亚静
地 址:北京西城区珠市口西大街120号太丰惠中大厦1027-1036室
联系电话:010-65978917
邮 箱:wenzhuxie@126.com

4、本网所有声明以及其修改权、更新权及最终解释权均属本司所有。

【媒体合作】

本司为尊重保护著作权,鼓励有益于社会主义精神文明、物质文明建设的作品的创作和传播,促进互联网良性发展,本着平等互惠、资源共享的原则,诚邀各类媒体、网站、单位、个人与本网建立友好的合作关系。
媒体合作、内容转载请联系
联系人:杨老师
联系电话:021-22899781