1/2
闵行两幅住宅地块成交!规划计容建筑面积超34万㎡
今日闵行2023-07-14 13:29:22

7月12日,在今年上海市第二批涉住地块供地中,闵行有两幅地块顺利成交,分别位于华漕镇和浦江镇浦江拓展大型居住社区,总面积近16万平方米,规划计容建筑面积将超过34万平方米。这是继今年4月份第一批次3幅商品房地块顺利成交后闵行区第二批次住宅出让。在持续推动土地出让工作中,闵行区规划资源局全面推进相关地块土地前期工作,强化资源要素保障,促进闵行经济发展。

华漕镇MHP0-1402单元16-05、17-04地块

配套齐全,未来将形成TOD三大组团

该地块位于虹桥前湾地区,东临纪翟路、南至雅乐路、西临双鹤浦、北临方林浦,土地面积60093.4平方米(折合约90亩),用地性质为三类住宅组团用地,容积率2.5,规划计容建筑面积150233.5平方米。竞得人为中国铁建房地产集团有限公司。

图片

地块周边公共设施较齐全,周边双轨环绕,有轨道交通13号线(在建)、示范区线(在建),未来出行非常便利;周边学校及配套有诸翟学校、上海外国语大学闵行外国语中学、COSTCO开市客、前湾印象城(在建中)、上海超极合生汇(在建)、坤赢旭华广场、丰尚国际广场、复旦大学附属华山医院(西院)等。虹桥前湾地区注重TOD开发,未来将围绕13号线西延伸纪翟路站、芳乐路站及25号线前湾公园站(暂名)形成三大组团。

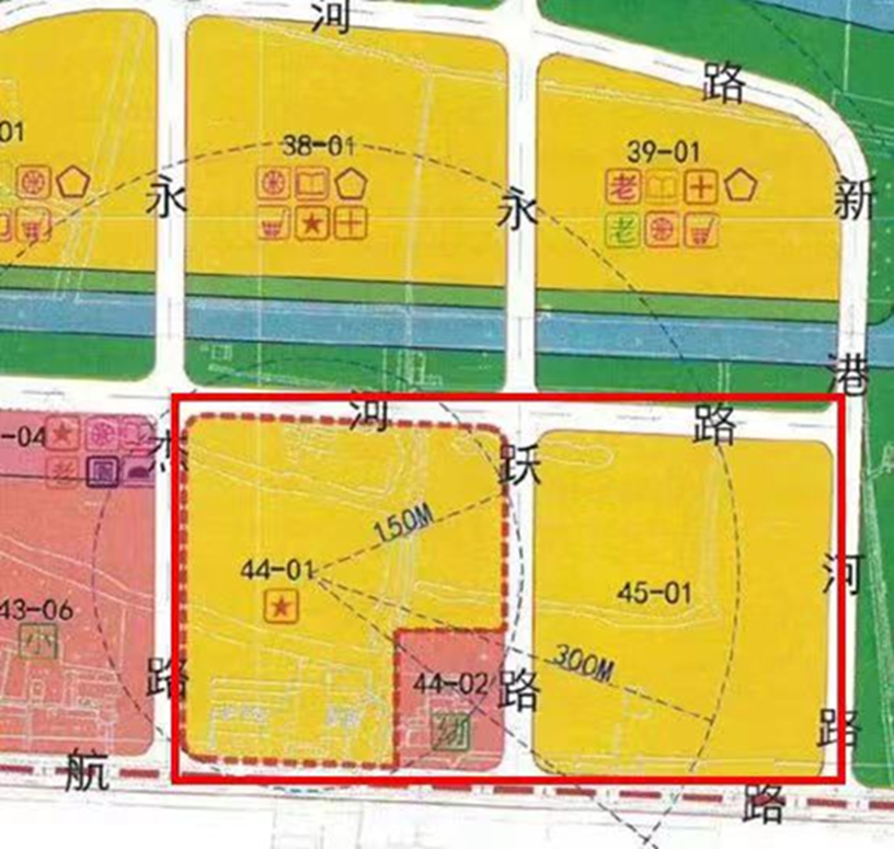
浦江拓展大型居住社区44-01、45-01地块

加速推进浦江地区形成产城融合综合性社区

地块位于浦江镇内,东至新港河路、南至闸航路、西至永杰路、北至跃进河路。出让土地面积95129.60平方米,容积率2.0,计容建筑面积190259.2平方米,土地用途为住宅。竞得人为大华(无锡)置业有限公司。

图片

该地块距浦江线汇臻路站约1.3公里,可接驳换乘8号线到达市中心;生活配套方面,周边有浦江商业中心、万达广场、浦江社区卫生服务中心。地块的出让和建设将为浦江大居片区注入新的活力,提升居住社区品质,进一步加速推进浦江地区形成产城融合的综合性社区。

今年4月份第一批次3幅商品房地块顺利成交后,区规划资源局紧锣密鼓地开展第二批次住宅出让工作并得以圆满成交,在持续推动土地出让工作中,强化资源要素保障,促进闵行经济发展,按年度出让计划联合各相关职能部门全面推进相关地块土地前期工作,做好地块出让前准备。同时按市统一安排节点稳步落实入市研判、预公告、正式公告等一系列工作程序,扎实推进出让程序,确保土地顺利出让。

图片由“今日闵行”授权

作者:崔松鸽
选稿:倪皓月
知识产权、免责声明以及媒体合作联系
继续了解
知识产权声明

【知识产权声明】

除本司(指上海东方网股份有限公司)另行声明外,本司网页及客户端产品(以下简称“本网”),包括但不限于东方新闻、翱翔、东方头条等,所涉及的任何资料(包括但不限于文字、图标、图片、照片、音频、视频、图表、色彩组合、版面设计、商标、商号、域名等)的知识产权均属本司和资料提供者所有。未经本司书面许可,任何人不得复制、转载、摘编、修改、链接、镜像或以其他任何方式非法使用东方网的上述内容。对于有上述行为者,本司将保留追究其法律责任的权利。

东方网、东方新闻、翱翔,以上均为本司享有权利之合法商标,未经本司书面授权,任何单位或个人不得使用上述商标,或将上述商标用作网站、媒体名称等。

【免责声明】

1、凡本网注明来源“东方网”或“东方新闻”或带有东方网LOGO、水印的所有内容,包括但不限于文字、图片、音频视频,版权均属本司所有,任何媒体、网站或其他任何形式的法律实体和个人未经本司书面授权均不得转载、链接或以其他方式复制传播。与我司签订有关协议或已经获得本司书面授权许可的媒体、网站或其他任何形式的法律实体和个人,应在授权范围内使用,且必须注明来源“东方网”。其目的在于传递更多信息,并不意味着本司赞同其观点或认可其内容的真实性。如果其他媒体、网站或其他任何形式的法律实体和个人使用,必须保留本司注明的“稿件来源”,并自负全部法律责任。如擅自篡改为“稿件来源:东方网”,本司将依法追究责任。

2、擅自使用东方网名义转载不规范来源的信息、版权不明的资讯,或盗用东方网名义发布信息,设立媒体账号等,本司将依法追究其法律责任。

3、鉴于本网发布主体、发布稿件来源广泛,数量较多,如因作者联系方式不详或其他原因未能及时与著作权拥有者取得联系,或著作权人发现本网转载了其拥有著作权的作品时,请主动来函、来电与本司联系,或与本司授权的中国文字著作权协会联系,提供相关证明材料,我方将及时处理。
中国文字著作权协会联系方式:
联系人:赵洪波 唐亚静
地 址:北京西城区珠市口西大街120号太丰惠中大厦1027-1036室
联系电话:010-65978917
邮 箱:wenzhuxie@126.com

4、本网所有声明以及其修改权、更新权及最终解释权均属本司所有。

【媒体合作】

本司为尊重保护著作权,鼓励有益于社会主义精神文明、物质文明建设的作品的创作和传播,促进互联网良性发展,本着平等互惠、资源共享的原则,诚邀各类媒体、网站、单位、个人与本网建立友好的合作关系。
媒体合作、内容转载请联系
联系人:杨老师
联系电话:021-22899781