1/9
超4500套!房型多、绿化好、有健身场地,闵行这两处动迁安置房有新进展
今日闵行2023-09-03 11:04:03

记者从浦江镇了解到,目前浦江镇内最大的两处动迁安置房项目——郊野公园10-13、郊野公园10-14迎来新进展。浦江郊野公园10-13目前正在由开发商进行室内自查自修工作,计划9月中旬开展预看房工作。浦江镇郊野公园10-14目前正在办理综合竣工验收,力争在今年9月获得交付许可证。

郊野公园10-13施工进度

浦江镇郊野公园10-13动迁安置房地块位于红卫河以南、项目红线以西、闵瑞路以北、新浦达泾以东,占地面积约152亩,总建筑面积约27.9万平方米。

项目坐落于浦江镇建岗村,主要安置因推进城镇化建设等原因涉及的动迁户。容积率为1.9,建设完成后共有21栋16层和2栋13层的小高层,住宅面积18.4万平米,可提供2173套住宅,近2297个机动车停车位,沿闵瑞路还有配套商业设施。

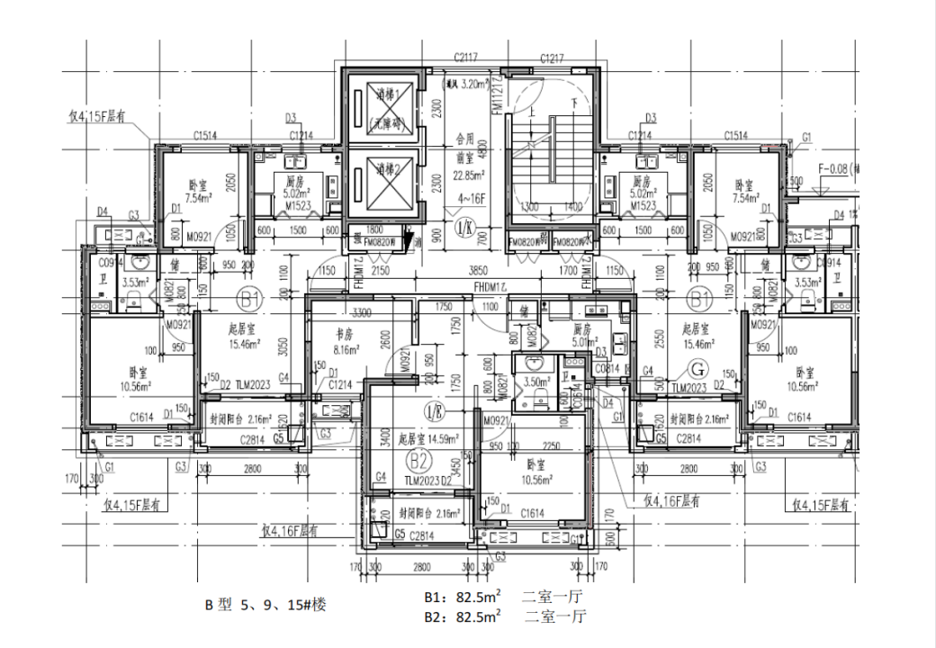
户型选择多种多样,包括63平方米的一室一厅、82.5平方米的两室一厅、99平方米的两室两厅、125平方米的三室两厅等。

图片

图片

图片

图片

户型图

小区内绿化景观设计独具匠心,打造了一处特色种植园——芳菲园,以及多处特色景观、阳光大草坪、环氧跑道、林荫步道等。同时配有一处羽毛球场供居民锻炼身体。

该项目由上海莘松亚锦房地产有限公司开发建设,目前开发商正在进行室内自查自修工作,计划9月中旬开展预看房工作,9月下旬进行交通、停车位、人防、消防、市容、档案等预验收工作,10月中旬申请综合竣工验收,力争11月底获得交付许可证。

图片

公共空间效果图

郊野公园10-14施工进度

浦江镇郊野公园10-14动迁安置房地块位于红卫河以南、三鲁公路以西、闵瑞路以北、项目红线以东。该项目占地面积约为150亩,总建筑面积约30万平方米。

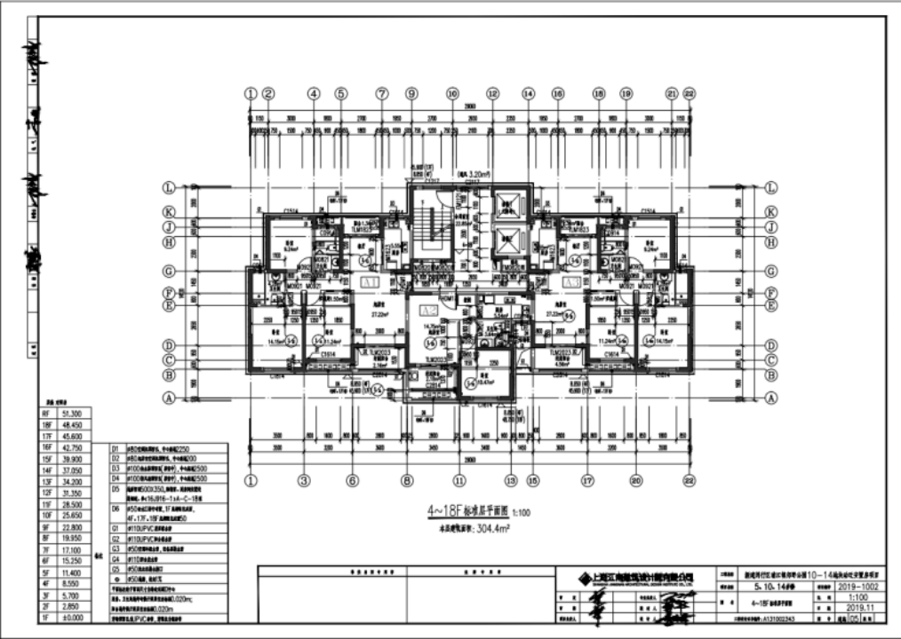
项目坐落于浦江镇建岗村,主要安置因推进城镇化建设等原因涉及的动迁户,由上海鼎展置业有限公司开发建设。容积率为2.08,建设完成后共有20幢18层、3幢16层的小高层。住宅面积约20万平方米,可提供2386套住宅,近2491个机动车停车位。

图片

图片

图片

户型图

小区内有一处草坪活动区,一处阳光休憩区,特色林荫道,休憩景亭,还将建设一处健身步道和一处健身场地,让居民们在“家门口”实现“健身自由”。

目前,此项目已完成交通、停车位、人防、消防、市容、档案等预验收工作。目前正在办理综合竣工验收,力争在今年9月获得交付许可证。

图片

公共空间效果图

作者:宋诗清
选稿:吴怡闻
知识产权、免责声明以及媒体合作联系
继续了解
知识产权声明

【知识产权声明】

除本司(指上海东方网股份有限公司)另行声明外,本司网页及客户端产品(以下简称“本网”),包括但不限于东方新闻、翱翔、东方头条等,所涉及的任何资料(包括但不限于文字、图标、图片、照片、音频、视频、图表、色彩组合、版面设计、商标、商号、域名等)的知识产权均属本司和资料提供者所有。未经本司书面许可,任何人不得复制、转载、摘编、修改、链接、镜像或以其他任何方式非法使用东方网的上述内容。对于有上述行为者,本司将保留追究其法律责任的权利。

东方网、东方新闻、翱翔,以上均为本司享有权利之合法商标,未经本司书面授权,任何单位或个人不得使用上述商标,或将上述商标用作网站、媒体名称等。

【免责声明】

1、凡本网注明来源“东方网”或“东方新闻”或带有东方网LOGO、水印的所有内容,包括但不限于文字、图片、音频视频,版权均属本司所有,任何媒体、网站或其他任何形式的法律实体和个人未经本司书面授权均不得转载、链接或以其他方式复制传播。与我司签订有关协议或已经获得本司书面授权许可的媒体、网站或其他任何形式的法律实体和个人,应在授权范围内使用,且必须注明来源“东方网”。其目的在于传递更多信息,并不意味着本司赞同其观点或认可其内容的真实性。如果其他媒体、网站或其他任何形式的法律实体和个人使用,必须保留本司注明的“稿件来源”,并自负全部法律责任。如擅自篡改为“稿件来源:东方网”,本司将依法追究责任。

2、擅自使用东方网名义转载不规范来源的信息、版权不明的资讯,或盗用东方网名义发布信息,设立媒体账号等,本司将依法追究其法律责任。

3、鉴于本网发布主体、发布稿件来源广泛,数量较多,如因作者联系方式不详或其他原因未能及时与著作权拥有者取得联系,或著作权人发现本网转载了其拥有著作权的作品时,请主动来函、来电与本司联系,或与本司授权的中国文字著作权协会联系,提供相关证明材料,我方将及时处理。
中国文字著作权协会联系方式:
联系人:赵洪波 唐亚静
地 址:北京西城区珠市口西大街120号太丰惠中大厦1027-1036室
联系电话:010-65978917
邮 箱:wenzhuxie@126.com

4、本网所有声明以及其修改权、更新权及最终解释权均属本司所有。

【媒体合作】

本司为尊重保护著作权,鼓励有益于社会主义精神文明、物质文明建设的作品的创作和传播,促进互联网良性发展,本着平等互惠、资源共享的原则,诚邀各类媒体、网站、单位、个人与本网建立友好的合作关系。
媒体合作、内容转载请联系
联系人:杨老师
联系电话:021-22899781