嘉定这里将新建住宅小区 可容纳1109户
2021-09-06 10:02:57
来源:上海嘉定
注意啦~嘉定这里将新建住宅小区,总建筑面积166869.95平方米,建成后可容纳1109户!
关于嘉定区嘉定新城(马陆镇)马陆社区43-05B、51-01地块商品住宅项目设计方案的公示
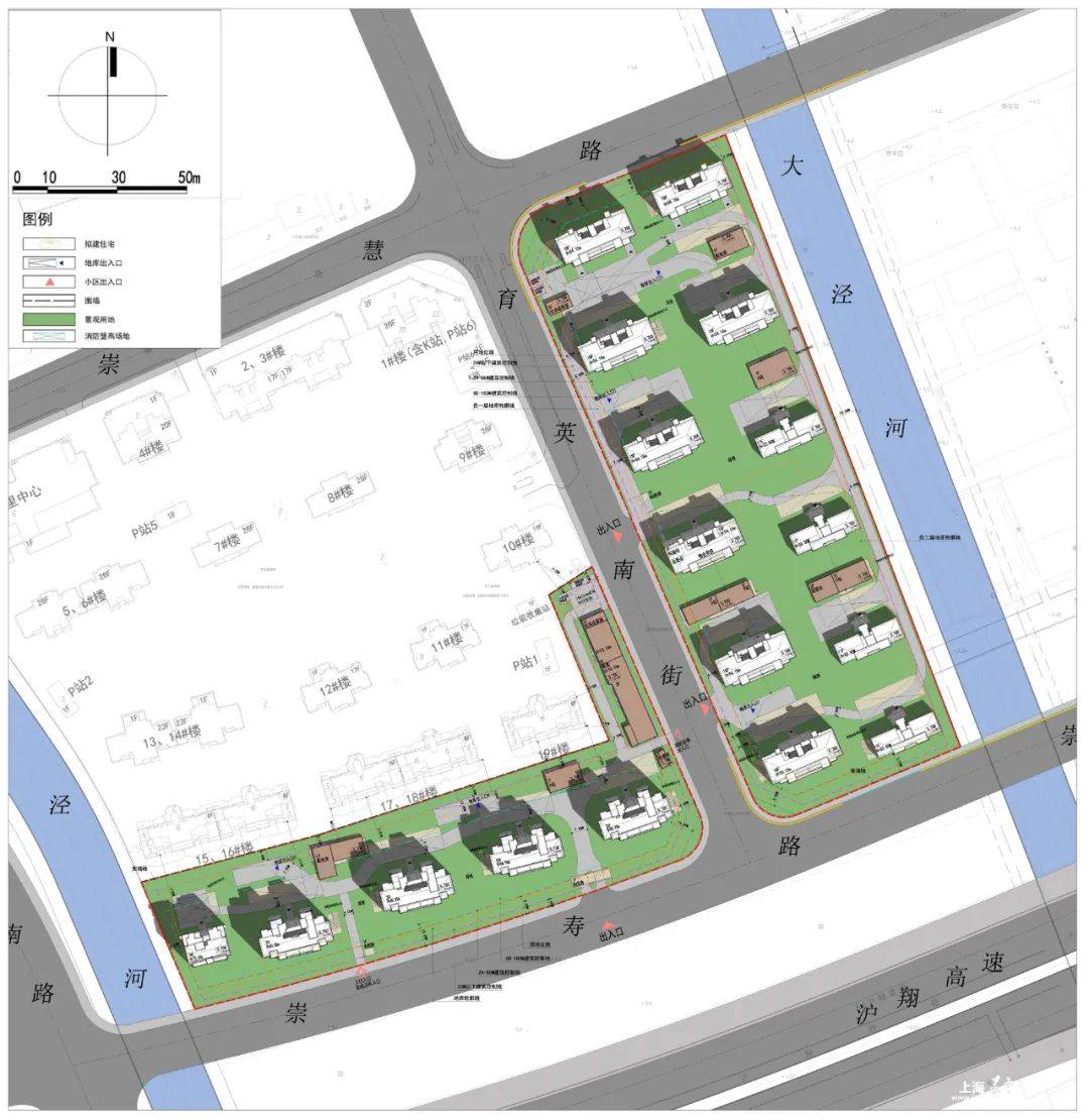
嘉定区嘉定新城(马陆镇)马陆社区43-05B、51-01地块商品住宅项目,东至大泾河、南至崇寿路、西至马泾河浜、北至崇慧路。

本项目由上海鑫富诚房地产开发有限公司投资建设,拟新建住宅小区,地块面积43659.00平方米,项目总建筑面积166869.95平方米。

备注:经济技术指标以最终核发的建设工程规划许可证为准,绿化景观以绿化部门审批为准,车位以交港部门的审批意见为准,出入口以交警部门的审批意见为准。